Einzelhandel zur Miete in Dreieich

Ihr Konzept ist gefragt*** | 463 qm Laden | Lastenaufzug | Schaufenster | Stellplätze**

3.000 €

Kaltmiete
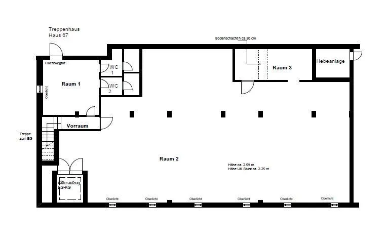
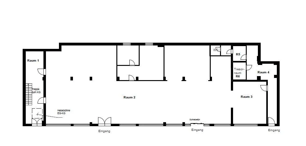
  • 745 m²

    Gesamtfläche (ca.)
  • 1969

    Baujahr
  • 4

    Stellplätze

Preise & Kosten

Standort

63303 Dreieich

Preise
  • Kaltmiete 3.000 €
  • Nebenkosten 1.200 €
  • Heizkosten in Nebenkosten enthalten
  • Warmmiete 4.200 €

Dateien & Unterlagen

Aktuelle Immobilienangebote

Houbban & Partner Immobilien

Die Immobilie

Einzelhandel zur Miete
  • Objekt-Nr LadeninDreieich-Sprendlingen
  • Anzahl Etagen 0
  • verfügbar ab sofort
Stellflächen
  • Stellplatzmiete 25 €
  • Stellplätze 4
Weitere Flächen
  • Verkaufsfläche (ca.) 463 m²
  • Fensterfront Länge 20
  • Hallenhöhe (ca. in m) 3.56

Ausstattung

  • Provisionspflichtig
  • Barrierefrei
  • Abstellraum
  • Unterkellert: Ja
  • Boden: Fliesen
  • Heizungsart: Fernwärmeheizung
  • Fahrstuhl: Personen

Ihre Anfrage

Energieverbrauchsausweis

0255075100125150175200225250
68,60 kWh/(m²*a)
  • Endenergieverbrauch 68,60 kWh/(m²*a)
  • Energieverbrauch inkl. Warmwasser
  • Befeuerungsart Fernwärme
  • Wesentlicher Energieträger Fernwärme
  • Energieeffizienzklasse B
  • Gültig bis 24.05.2028
  • Energieausweis 2014
  • Energieausweis Ausstellungsdatum 2018-05-25