Gastgewerbe/Hotel zur Miete in Rüsselsheim

PROVISIONSFREI | 1.500 qm | Umwidmung in gewerbliches Wohnen möglich | Am Marktplatz Rüsselsheim

Preise & Kosten

Standort

64528 Rüsselsheim

Preise
  • Kaltmiete 10 €
  • Miete pro m² 7 €
  • Nebenkosten 3 €
  • Heizkosten in Nebenkosten enthalten
  • Warmmiete 10 €

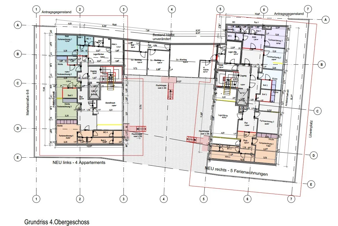
Die Immobilie

Gastgewerbe/Hotel zur Miete
  • Objekt-Nr GewerblichesWohnen|Rüsselsheim-City
  • Kategorie Standard
  • Etage 1
  • Anzahl Etagen 5
  • verfügbar ab sofort
  • Lage/Gebiet 1A
  • Heizungsart Zentralheizung
  • Fahrstuhl Personen
  • Gäste-WC
  • Abstellraum
  • Provisionspflichtig

Ihre Anfrage

Energieausweis

  • Energieausweis nicht_noetig